Ladleif Architekten GmbH

Ladleif Architekten GmbH

Haus L 9

Maßnahme

Neubau

Nettofläche

909 m²

Ort

Niestetal

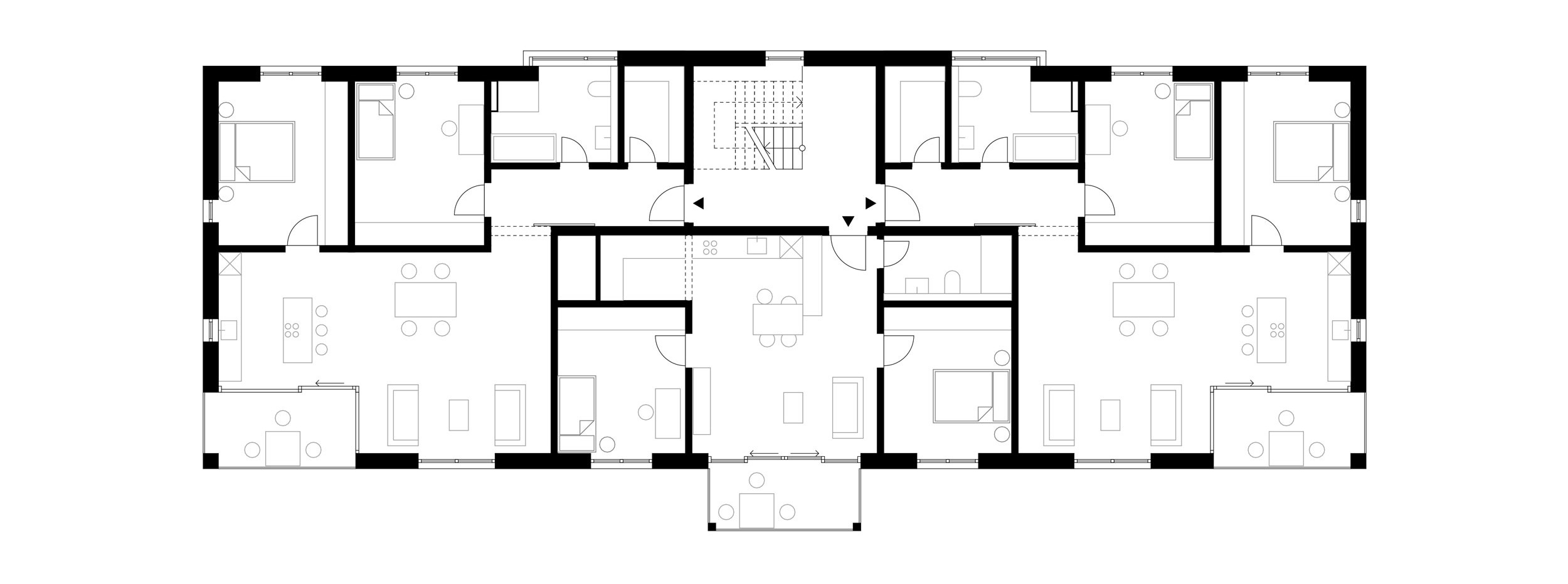
Erdgeschoss

Obergeschoss

Dachgeschoss

Schnitt A

Schnitt B

Ansicht Süd

Ansicht Ost

Ansicht Nord

Ansicht West

>