Umnutzung einer Bank zur Gastronomie



Fertigstellung
2021
Maßnahme
Umbau und Sanierung des Erdgeschosses
Nettofläche
430 m²
Ort
Königsplatz Kassel

Grundriss


Querschnitt Bestand

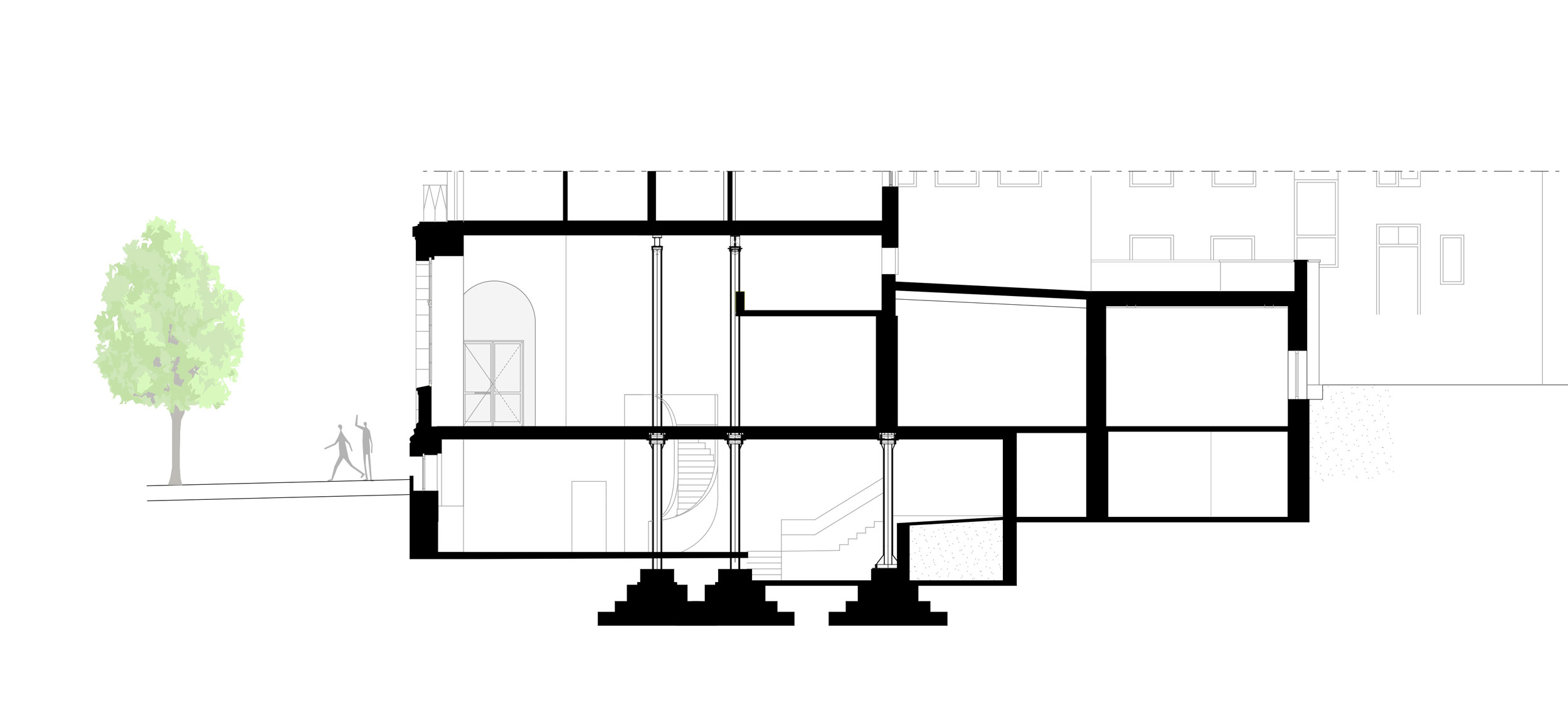
Querschnitt Neu







2021
Umbau und Sanierung des Erdgeschosses
430 m²
Königsplatz Kassel

Grundriss


Querschnitt Bestand

Querschnitt Neu



